产品系列
热门产品

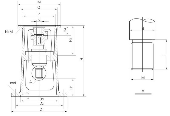
双支点机架,不宜于选用无支点、单支点机架时,应选用双支点机架。但选用的双支点机架下支点轴承结构采用带紧定套的锥孔调心滚子轴承便利于安装维修,且搅拌轴与减速机之间的联接选用HL型弹性柱销联轴器。
2、HG65-251-69标单支点机架主要参数及尺寸
机架 型号 | 反应罐 (立升) | 减速机 BLD | 反应罐连接处 | H | H1 | H3 | H4 | 搅拌轴连接处 | 减速机连接处 | ||||||||||
D1 | D2 | D3 | n×d | h | M | I | d | P | N×M | D | Q | M | |||||||
TB1 | 50 100 | B1 | 260 | 220 | 190 | 3×14 | 7 | 514 | 110 | 185 | 75 | 33×2 | 50 | 40 | 170 | 6×10 | 35 | 200 | 230 |
TB2 | 200 | B1 | 305 | 280 | 220 | 3×14 | 7 | 514 | 140 | 185 | 80 | 42×3 | 60 | 50 | 170 | 6×10 | 35 | 200 | 230 |
TB3 | 300 | B2 | 335 | 300 | 250 | 3×18 | 7 | 530 | 190 | 210 | 94 | 42×3 | 70 | 50 | 200 | 6×10 | 45 | 230 | 260 |
TB3 | 500 | B2 | 335 | 300 | 250 | 3×18 | 7 | 530 | 190 | 210 | 94 | 48×3 | 70 | 60 | 200 | 6×10 | 45 | 230 | 260 |
TB4 | 1000 | B3 | 442 | 400 | 345 | 4×26 | 7 | 675 | 200 | 250 | 100 | 60×4 | 80 | 70 | 270 | 6×12 | 55 | 310 | 340 |
TB4 | 1500 | B3 | 442 | 400 | 345 | 4×26 | 7 | 675 | 200 | 250 | 100 | 65×4 | 85 | 76 | 270 | 6×12 | 55 | 310 | 340 |
TB4 | 2000 | B3 | 442 | 400 | 345 | 4×26 | 7 | 675 | 200 | 250 | 100 | 78×4 | 90 | 89 | 270 | 6×12 | 55 | 310 | 340 |
TB5 | 3000 | B4 | 460 | 400 | 345 | 4×26 | 7 | 720 | 200 | 250 | 120 | 78×4 | 90 | 89 | 320 | 8×14 | 70 | 360 | 400 |
TB5 | 5000 | B4 | 548 | 500 | 435 | 4×30 | 7 | 736 | 200 | 250 | 120 | 78×4 | 100 | 95 | 320 | 8×14 | 70 | 360 | 400 |